Name:
Password:
Home
About Us
News
Products
Projects
Quality
Video
Service
CHINESE
Company
Company news
Staff corner
Features and Benefits
Direct Bury
Pipe jacking
Above ground
Slip lining/relining
FWC coupling
Mechanical Coupling
Tee
Bends
Reducers
DFHB GRP Flange Connectors
Projects
Cases
Production
Raw materials
Process
Laboratory and quality management
Honor
DFHB Pipe video
Acticity
Message
Contact us
Position:
Home
>
Products
>
GRP manholes
Products
产品展示
当前位置:
首页
>
产品展示
>
Products
>
GRP manholes
Features and Benefits
Direct Bury
Pipe jacking
Above ground
Slip lining/relining
FWC coupling
Mechanical Coupling
Tee
Bends
Reducers
DFHB GRP Flange Connectors
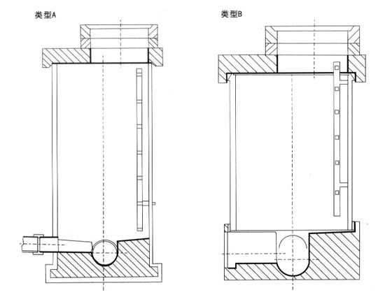
GRP manholes
GRP manholes
The DFHB standard manhole type A is made from solid GRP in accordance with DIN 19565,part 5. The corrosion-resistant joint less structure both inside and outside consists of a DFHB pipe and a GRP floor channel is installed accordingly.
Prev:
Reducers
Next:
FWC coupling
【
Close
】
Links:LIANKE
Copyright © Zhejiang Eastern DFHB Pipes Co.,Ltd All Rights Reserved